Event Hall - Fabryka Norblina Warszawa – konferencje.pl

Event Hall - Fabryka Norblina

Map Show on map
Conference Conference 350 pers.
Conference
About
Parking Parking 400 aut
Parking
About

Opis obiektu Event Hall - Fabryka Norblina

Event Hall - Fabryka Norblina

Location: Event Hall is an event space located on level +2 of the Galwan building, within Fabryka Norblina in central Warsaw.

Venue character: A space for all the senses. Its industrial interior, central location and flexible layout create strong conditions for conferences, presentations, premieres and corporate events.

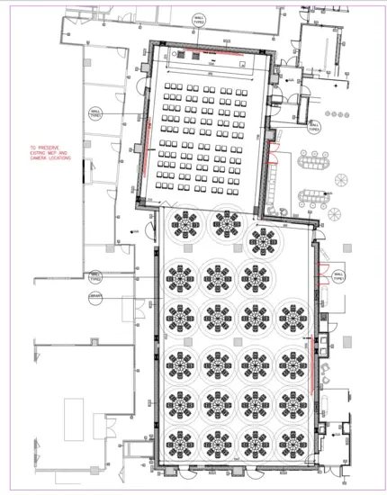
Conference space: 670 m² of event space with the option to divide the venue using a modular wall, allowing the layout to be adjusted to the number of guests and the flow of the event.

Additional possibilities: The space can host dedicated screenings, presentations and special formats tailored to the character of the event. Organizers also have access to mobile bars and bar solutions that support networking, evening and accompanying event formats.

Additional advantages: 400 parking spaces and access to the attractions of Fabryka Norblina, including restaurants, cinema spaces and cultural venues.

AV equipment includes:

  • LED screen
  • two additional foldable screens
  • sound system
  • lighting
  • backlit walls
  • decorative lighting
  • microphones

Sale konferencyjne i przestrzenie do wynajęcia w Event Hall - Fabryka Norblina (3)

Sale łącznie

500 os. / 670 m2

Liczba sal

3

Największa sala konferencyjna

350 os. / 670 m2
  • 450 m2
  • 350
  • 280
  • 670 m2
  • 350
  • 225 m2
  • 200
  • 160
  • 225 m2
  • 150
  • 120
  • 220 m2
  • 150
  • 120

Tabela sal konferencyjnych i przestrzeni do wynajęcia

Nazwa sali Teatralnie Bankiet
350 280
350
200 160

Rzuty sal konferencyjnych

Sprawdź rzuty sal konferencyjnych

Poznaj sale z pełnej perspektywy

Projection

Wyposażenie do konferencji online i hybrydowych w Event Hall - Fabryka Norblina

Zaplecze techniczne Event Hallu umożliwia streaming do innych przestrzeni Fabryki Norblina oraz sal kinowych Kina Kinogram. Dzięki szybkiemu łączu internetowemu możliwa jest również transmisja na żywo.
Internet min. 100/20 mb/s
Microphones and audio recorder
Led screen
Seating for the audience
AV MIxer
4k Cameras
Green room
Studio lighting

Restauracje w Event Hall - Fabryka Norblina


Lokalizacja Event Hall - Fabryka Norblina

Dworzec

Warszawa Centralna (1 km)

Lotnisko

Lotnisko Chopina w Warszawie (7 km)

Parking własny

400 aut

Dojazd komunikacją miejską

Autobus, Tramwaj

Otoczenie wokół Event Hall - Fabryka Norblina

Własny teren otwarty

Nie

Teren piknikowy

Nie ma

Okolica

In the mountains
In the woods
Near the river
Near the lake
Near the sea
Near the main road
In the city center
Out of town
Near the airport

Najczęściej zadawane pytania o Event Hall - Fabryka Norblina (FAQ)

Event Hall - Fabryka Norblina znajduje się pod adresem: Żelazna 51/53, 00-841 Warszawa, mazowieckie.

Event Hall - Fabryka Norblina oferuje łącznie 5 conference rooms.

Największa sala konferencyjna w Event Hall - Fabryka Norblina ma powierzchnię 450 m², co pozwala na zorganizowanie wydarzenia dla 350 pers. w układzie teatralnym. W przypadku bankietu przestrzeń pomieści do 280 pers.


Aktualności z Event Hall - Fabryka Norblina

Loading…

Guides